Przenośnik rolkowy z funkcją sortowania
Podajnik rolkowy z sortowaniem surowca na prawo i lewo jest uzupełnieniem poziomych linii do przetarcia surowca - dłużycy.
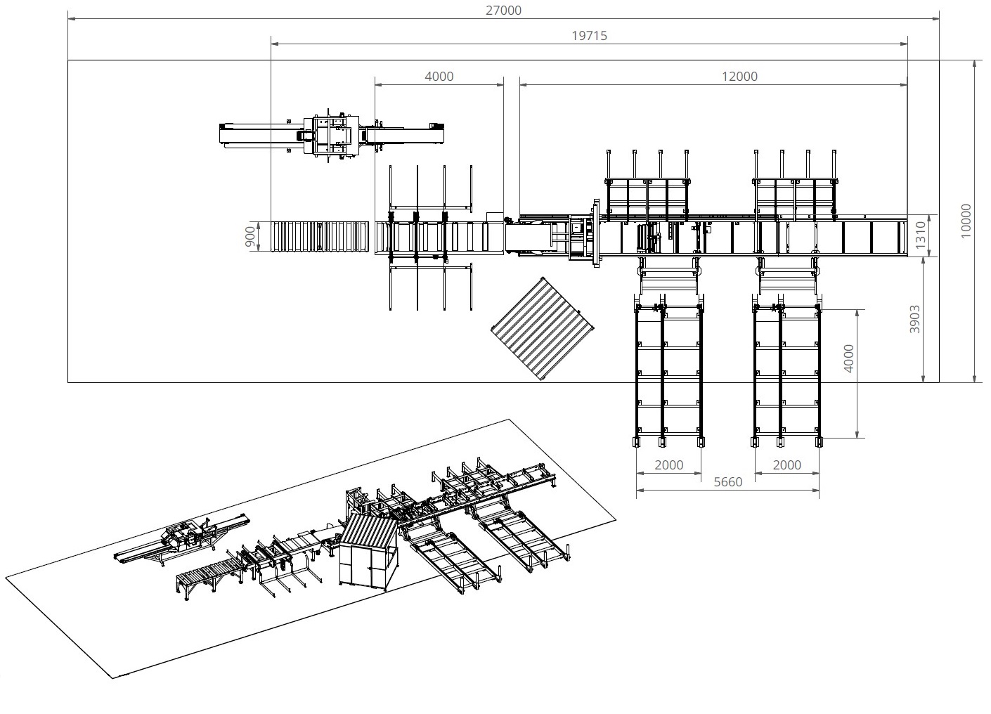
Praca podajnika najlepiej sprawdza się w zestawieniu z pilarką typu CZ-1/WZM wyposażoną w krótką taśmę (dł. 1,4 m) odbierającą elementy zrzucane głowicą podczas powrotu wózka. Dodatkowo stół rolkowy wyposażony jest w zabieraki, które zsuwają przetarty element na prawo bądź lewo, w zależności od decyzji operatora pilarki. Zastosowanie takiego rozwiązania znacznie wpływa na wydajność pracy, ułatwia i odciąża obsługę oraz ogranicza liczbę osób potrzebnych do obsługi maszyny.
Istnieje możliwość rozbudowy podajnika z możliwością sortowania elementów prawo/lewo bądź podawania ich dalej prosto do kolejnych maszyn.

Dane techniczne
| Wymiary gabarytowe |
|
| Masa | 1000 kg |
| Zakres pracy | możliwość sortowania na prawo/lewo elementów o długości w zakresie 2000 ÷ 6500 mm |
| Podajniki | rolki z napędem stałym |
| Pozostałe dane | w ofercie dostępne są krótsze wersje przenośnika, w zależności od długości ciętych elementów |