Horizontal Sawmills
OPTIMIZE YOUR SAWMILL WITH US!
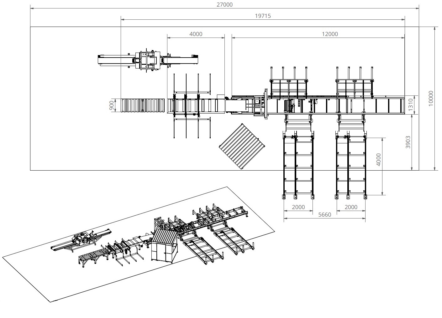
WIREX semi-automatic production line is a system that perfectly fits your company. Tailor-made production lines are of high interest due to numerous advantages, but mostly due to decrease of production costs. Let us know about your expectations, what is your production profile, send us dimensions of your plant and we will take care of the rest.
All we need is...
A handwritten sketch of the production site, a few photos and a short conversation is all we need to prepare preliminary idea layout that perfectly fits your working profile.
Our lines warrant:
- automation of production processes,
- increase in safety of work of your staff,
- reduction of unnecessary internal transport between machines and devices,
- individual adjustemnt according to your working requirements,
- utilzation of production space in best possible way,
- decrease of wastes amount,
- maximize profits of your business!
CALL US AND CHECK HOW YOUR SAWMILL COULD LOOK LIKE!
.jpg)